kaiyun开云网站当白色遇见弧线装修效果纯净唯美、颜值超高
在这套装修设计中,白色的基底透出柔和光芒,形成一道优雅的圆弧。通过精心布局回应了房主对朴素单色的喜好,营造出静谧而艺术的氛围。

房主说,设计公司能认真听取屋主需求非常最重要,详细查看了初次见面时房主准备的PPT。这种谨慎的态度让人感到放心。


宽敞的公共区域通过柔和的弧线巧妙分割,起伏的线条如山脊,挖空的圆顶宛如光之顶,每一处细致布局展示了朴素的美感。
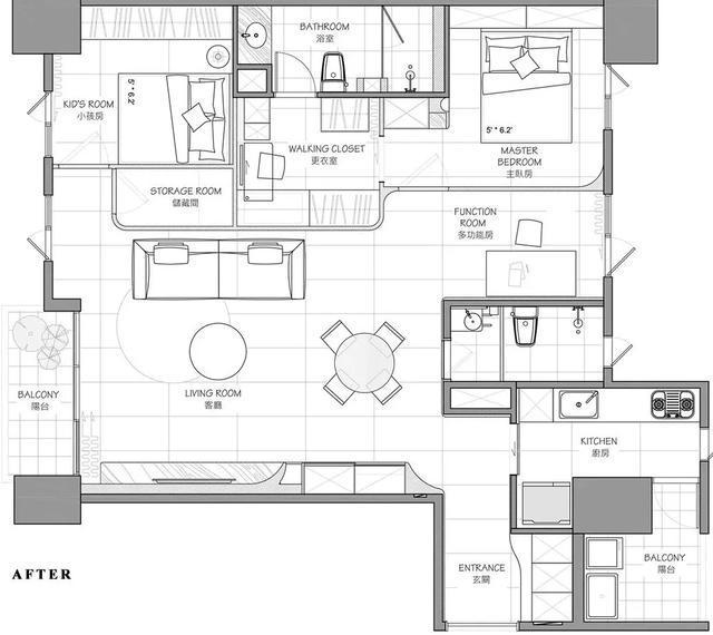
包括一个设有卫生间和衣帽间的主卧、多功能房和储藏间,存储空间充足却不显笨重。
餐边柜铺设灰色水磨石,带有复古风情,重新配置的插座和橱下灯条,使其成为夫妻两人的手冲咖啡小吧台。

简单质朴,干净纯粹。没有复杂花哨的配色,kaiyun体育官方网站低调不张扬却很迷人,让我们回到家可以静下来的感觉。


简化繁琐日常,细心观察生活。即使是平凡事物,累积起来也能成为生命的亮点。


在与设计师联系前,我们大量参考了 Pinterest,从中找到了与我们想法契合的设计灵感。
我们喜欢低色彩度、温润感的家具。沙发选自意大利品牌 NATUZZI,简单耐看且舒适;餐桌是意大利品牌 Calligaris 的圆桌,搭配 GUAPA 椅子,镀铬底座。
我们喜欢静静待着,感受圆弧线条和特殊涂料的氛围。餐边柜弥补了厨房的不足,让我们可以继续享受手冲咖啡的乐趣。

私密空间最满意的地方是卫浴。虽然客卫因空间限制较小,但小巧别致,主卫的设计更像高级酒店,有层次感和仪式感。


设计师非常愿意聆听我们的想法,给予专业建议,从接洽、施工到验收,双方都保持正向交流。我们对最终的成果非常满意。
沟通时,一定要清楚表达自己的需求和喜好,不要指望设计师能完全掌握屋主的想法。房主该做的功课和资料搜集都不能少。
